Composition Pedals



Composition Pedal GreatSwellPedal
(Gt) Pedal 1Dulciana 8'-Sub bass 16'
(Gt) Pedal 2Open Diapason 8'
Clarabella 8'
Dulciana 8'
Principal 4'
-Open Diapason 16'
sub bass 16'
(Sw) Pedal 1-Gamba 8'-
(Sw) Pedal 2-Bourdon 16'
Gamba 8'
Flute 4'
Oboe 8'
-
Tremulant and couplers are not affected





Composition action


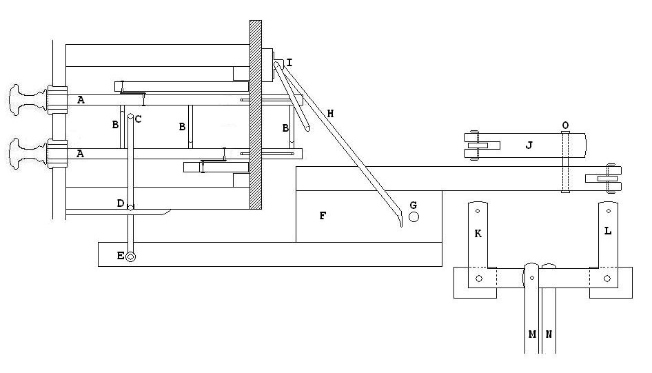
The above diagram illustrates the workings of the combination action or "composition pedals". There are two pedals to each stop jamb. Their operation is completely mechanical, and very clever. Audsley describes the type of mechanical combination action used in pipe organs as "fan actions". These were double-acting pedals, meaning on a single depression, they would draw the stops they were meant to, as well as taking in any which were not part of their combination. They worked on the principal of two wooden fans, one fan would move across the stop shanks in one direction, and the other fan would move in the opposite direction at the same time. The shanks were fitted with pegs so as to engage with either the "positive" or "negative" fan. This combination action is closely linked to this mechanism, but because there are just two combinations to each jamb, its operation is slightly different.

A A are the stop shanks which operate the stop mechanism and open the mute valves when drawn. B B B represent steel pegs which run through the shanks and protrude into the center. The rod C, turns about the point D and is attached to the wooden stock, F, at the point E. The second rod, H* turns about the point I, and is moved by the peg in the wooden stock at G. Before continuing, it is neccessary to describe the movement of the stock, F. The levers K and L are sections through bell-cranks. They are operated by wooden rods, M and N. M is associated with the forte pedal, and N with the piano pedal. Crank L is attached directly to the stock, and crank K is attached to the stock J which is linked, by the pin at O to the main stock. The result is this; when the forte pedal is pressed, the rod M rises, lever L is moved backwards, and the stock F moves to the right. When the piano pedal is pressed, the rod N rises, moving the lever K forwards, the stock J moves the main stock F to the left. Careful study of the diagram will show that when the stock F moves to the right, the rod C, will push against the steel pins, and draw any stops which have their pins at that point. This is the action of the forte pedal which draws every stop (save the Violone, whos pin has been removed). When all the stops are drawn, and the combination action is at rest, the lever C will be next to the second set of steel rods at B. On depression of the piano pedal, two things happen; The stock F, moves to the left, so the rod C engages with those stops to be drawn back in by the pedal, at the same time, the pin G engages with the rod H which draws the sfot stops by means of the third set of pins at B. This action is reliable, and relatively smooth in its working. It is strong enough to draw all the stops together against the force of the mute springs with ease.

* In the diagram, the stock, F is shown perpendicular to the stop jamb for ease of drawing, in reality, the stop jamb is set at an angle of 45 degrees from both the manuals,
and the stock, F. Therefore, the rod H is shorter, needing much less movement to draw the stops as is indicated in the diagram.



<< HOME